
Projekt
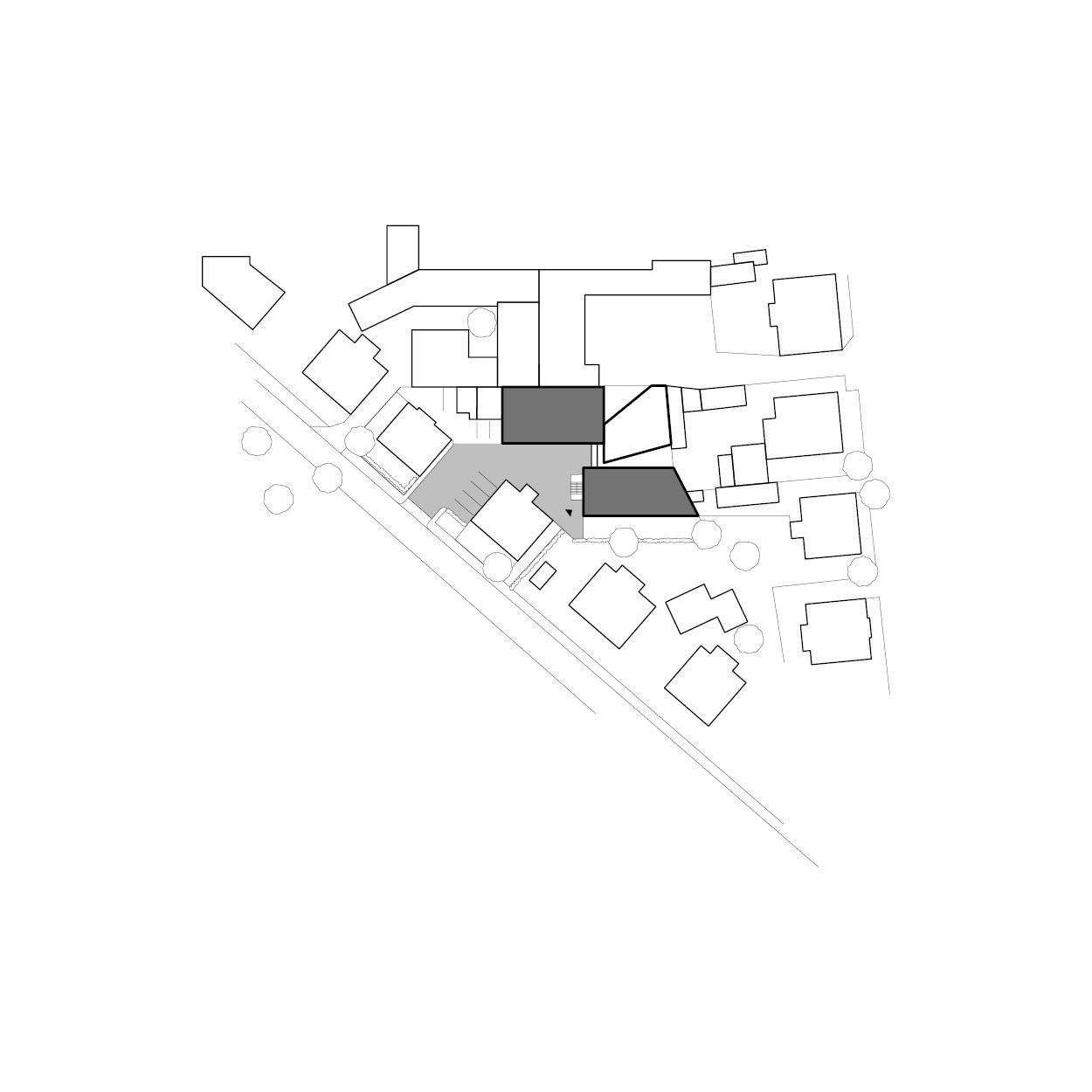
Standort
Typus
Bauherr
BGF
LPH
Jahr
Kosten
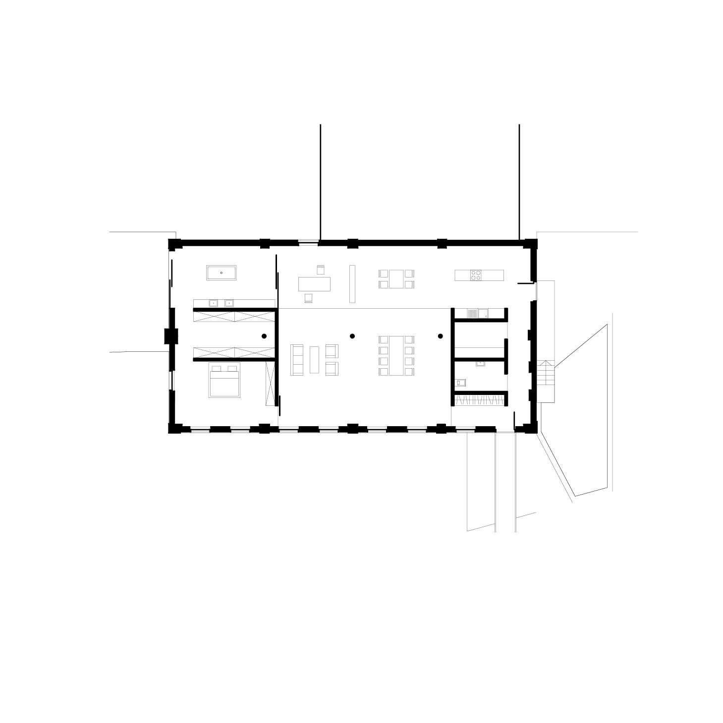
Die beiden parallel zueinander positionierten Gebäude liegen in zweiter Reihe an der Kiefernstraße in Radebeul und entsprechen in ihrem Erscheinungsbild der Industriearchitektur der Jahrhundert-wende. Die räumlichen Dimensionen im Innenraum ermöglichen großzügiges Loftwohnen. Die sechs Lofts wurden geschossweise angeordnet. Der Wohnraum ist zentral positioniert. Schlaf- und Nassbereiche sind seitlich daran angegliedert und durch leichte Trennwände mit großzügigen Öffnungen und Schiebetürelementen separiert, so dass ein lockerer, offener Grundriss erhalten blieb. Die bereits im Bestand vorhandenen, großzügigen Fensteröffnungen bleiben in Erscheinungsbild, Dimension und Anzahl erhalten und tragen mit dem vorhandenen, aufgearbeiteten Stützentragwerk maßgeblich zum Industriecharm bei.












