
Projekt
Standort
Typus
Bauherr
BGF
LPH
Jahr
Kosten
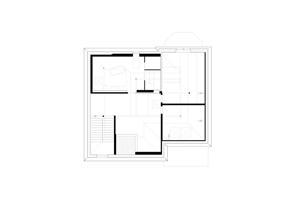
Inmitten der zauberhaften Kulisse einer Villa, errichtet im Jahr 1897 von Baumeister Adolf Neumann und einstiger Rückzugsort des russischen Gesandten in Korea, Carl von Weber, offenbart sich eine faszinierende Architekturgeschichte. Nachdem die Villa im Jahr 2000 den Besitzer wechselte, wurde sie im Jahr 2017 erneut von neuen Eigentümern erworben, die sich mit Hingabe und Respekt der Aufgabe widmeten, das historische Anwesen zu revitalisieren.Die dreijährige Kernsanierung, die zwischen 2017 und 2020 stattfand, prägte eine Phase intensiver Restaurierung, die die Villa in neuem Glanz erstrahlen ließ. Als die neuen Eigentümer das Anwesen übernahmen, fanden sie es gezeichnet von erheblichen Substanzschäden wie Hausschwamm, Braunfäule und einem Riss in der Westfassade. Dieser Herausforderung stellten sich Eigentümer und Architekten mit einem klaren Ziel vor Augen: die Wiederherstellung der Villa zu einem zeitgemäßen, aber dennoch historisch geprägten Wohnort.Während der Sanierung wurde besonderer Wert auf den Einsatz traditioneller Baustoffe und Techniken gelegt, um den einzigartigen Charme und die Authentizität des historischen Gebäudes zu bewahren. Die Wahl von atmendem und feuchtigkeitsregulierendem Lehmputz, die Verwendung von Lehm- und Holzbauplatten sowie die sorgfältige Rekonstruktion historischer Putzdeckenphasen und runder Ecken trugen dazu bei, den historischen Charakter zu bewahren und gleichzeitig den modernen Ansprüchen gerecht zu werden. Die Sanierung erstreckte sich über sämtliche Bereiche der Villa, einschließlich des Dachs, des Obergeschosses, des Souterrains und der Fassade. Insbesondere die Trockenlegung des Mauerwerks an der Nordseite des Souterrains und die Abdichtung des Mauerwerks waren entscheidende Schritte für die langfristige Erhaltung des Gebäudes. Neben der Erneuerung der Bausubstanz wurden auch grundlegende Veränderungen im Innenraum vorgenommen, um zeitgemäßes Wohnen zu ermöglichen. Die Entfernung einer Wand im Obergeschoss, die Begradigung einiger Wände im Dachgeschoss und der Einbau zusätzlicher Fenster schufen lichtdurchflutete Räume. Die Schaffung einer Speisekammer im Obergeschoss sowie von Abstellräumen im Dachgeschoss zeugt von einer modernen und durchdachten Anpassung an zeitgemäße Bedürfnisse. Diese dreijährige Sanierung erzählt nicht nur die Geschichte einer gelungenen Restaurierung, sondern auch von der Hingabe und Leidenschaft derBeteiligten, die es geschafft haben, die Villa in eine zeitgemäße Oase zu verwandeln, ohne dabei die historische Substanz aus den Augen zu verlieren.





