
Projekt
Standort
Typus
Bauherr
BGF
LPH
Jahr
Kosten
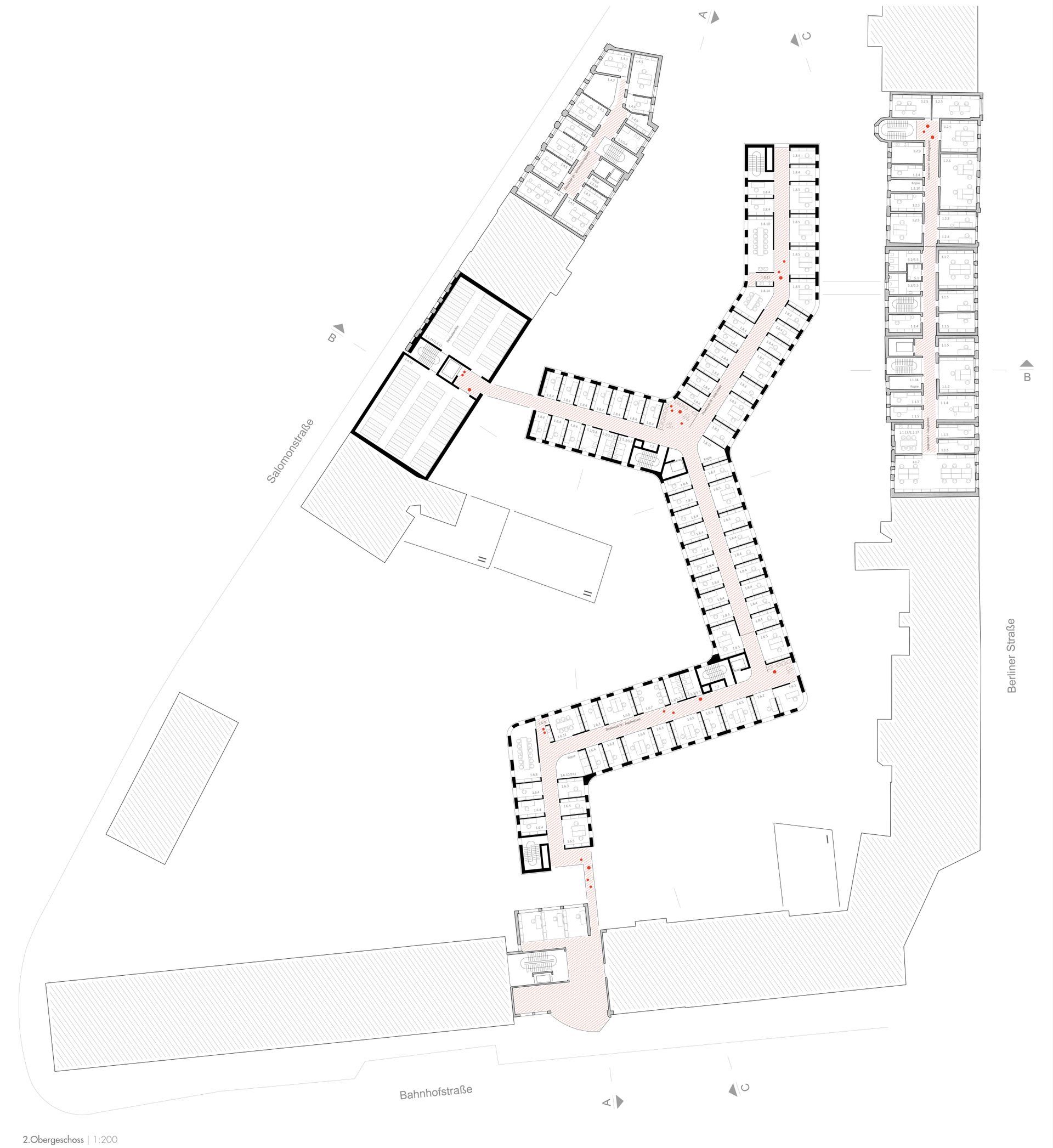
Im Zuge einer Kreisreform und der einhergehenden Zusammen-legung der einzelnen Kreisverwaltungen Görlitz, Löbau und Niesky, plant das Landratsamt Görlitz mehrere Erweiterungsbauten für die hierfür zusätzlich am neuen Standort benötigten Verwaltungs-flächen. Die geplante Erweiterung erhält eine bauliche Verbindung mit den bereits bestehenden Verwaltungsbauten entlang der Bahnhofstraße. Innerhalb des gründerzeitlich geprägten Quartier-blocks, auf dreieckigem Stadtgrundriss zwischen Bahnhofstraße, Berliner Straße und Salomonstraße gelegen, wird ein für die zu-künftige Entwicklung leistungsfähiger, gut vernetzter Ver-waltungscampus entwickelt. Über die Erfüllung des geforderten Raumbedarfs hinaus werden durch attraktive Nutzungsangebote (Kantine/ Restaurant/ Shops) entlang der Berliner Straße, als auch die Konzentration von ca. 700 hochwertigen Arbeitsplätzen revitalisierende Impulse für die unmittelbare Stadtumgebung und die weitere Entwicklung des Viertels gegeben. Im Inneren der Blockränder werden Flächen als Baufeld für einen Verwaltungs-neubau zur Verfügung gestellt. Die großräumige Innenhofsituation ist durch vorhandene Bebauungen, verschiedene zu erhaltende Nutzungsbelegungen und in Privatbesitz befindlichen Grund-stücken stark beeinflusst. Mit seiner fließenden, bandartigen Form geht der Entwurf auf die komplexen Rahmenbedingungen ein, die sich aus dem Raumprogramm und des baulichen Umfeldes er-geben. Der Baukörperentwurf lotet das Baufeld rücksichtsvoll auf Entwicklungspotenziale aus, nutzt die vorhandene Grundstücks-fläche hinsichtlich Dichte, Belichtung und sozialen Abständen gekonnt aus und setzt die vielschichtigen Anforderungen in harmonischer Weise baulich um. Durch drei Verbindungsbrücken, hin zu den drei jeweils umgebenden Blockrändern, wird das städtebauliche und funktionale Ziel zwischen den einzelnen Gebäudeteilen und Abteilungen zu vernetzen, erfüllt. Auf diese Weise werden die in den Blockrändern befindlichen Gebäudegruppen, sowie bauliche Einzelobjekte mit dem Neubau zu einem modernen und effizienten Verwaltungskomplex zusammen gezogen. Die bewegte Hüllenform des Neubaus lässt um sich herum interessante und zur Naherholung attraktive Außenräume wie eine urbane Platzsituation, hochwertige Aufenthaltsflächen, ruhige Grünzonen und mehreren Parkplätzen entstehen. Zur Stärkung der Entwurfsidee erfährt die Fassade eine bandhafte Gliederung in Sockelgeschoss und Obergeschosse. Der Sockel mit vornehmlich großflächigen Nutzungen belegt erhält großflächige, transparente Öffnungen die weite Einblicke in das Innere gewähren. An der Wandinnenseite angeschlagene Fenster erzeugen Plastizität lösen den Baukörper leicht vom Boden ab und schaffen informelle Sitzmöglichkeiten. Die im Sockelbereich angedachte strukturierte Betonfassade bietet durch seine Materialität gestalterische Qualität, Beständigkeit und Langlebigkeit. Die darüber liegenden Fassadenebene sind durch ein spielerisch gerastertes Fensterbild gegliedert. Die zu einander versetzten Elemente basieren auf einem einheitlichen Grundmodul und werden in wiederkehrenden Rhythmus zu immer wieder neuen Kombinationen zu einander gesetzt. Die unregelmäßig scheinende Abfolge der Öffnungen stärkt das Thema des Fließens im Erscheinungsbild der sich bewegenden Fassade. Im Kontrast zum Sockel werden die Fensterelemente der Obergeschosse an der Wandaußenseite angeschlagen um ein bündiges Erscheinungsbild im oberen Teil der Fassade zu erzeugen. Die Fassade erhält eine geputzte Oberfläche aus einem durchgefärbten strukturierten mineralischen Putz in dezenter, zur Umgebung passender Farbigkeit. Eine angemessene Erscheinung in Form, Funktion, Farbe, Materialität und Ausstrahlung die eine hohe Akzeptanz bei Mitarbeitern, Bürgern, Besuchern und Nachbarn begründet ist das architektonische Ziel dieses Lösungsvorschlages.






